網頁的回應式設計 responsive-design-for-web-pages

CAUTION
AEM 6.4已結束延伸支援,本檔案不再更新。 如需詳細資訊,請參閱 技術支援期. 尋找支援的版本 此處.
NOTE
Adobe建議針對需要單頁應用程式架構用戶端轉譯的專案使用SPA編輯器(例如 React)。 深入了解.

設計您的網頁,使其與顯示其的用戶端檢視區相適應。 透過回應式設計,相同的頁面可以兩種方向有效地顯示在多個裝置上。 下列影像示範頁面可以透過哪些方式回應檢視區大小的變更:

  • 配置:對較小的視區使用單列佈局,對較大的視區使用多列佈局。
  • 文本大小:在較大的檢視區中使用較大的文字大小(如適當,例如標題)。
  • 內容:在較小的裝置上顯示時,僅包含最重要的內容。
  • 導覽:提供裝置專用工具,供存取其他頁面。
  • 影像:提供適合用戶端檢視區的影像轉譯。 根據窗口尺寸。

chlimage_1-4

開發Adobe Experience Manager(AEM)應用程式,產生可適應多種視窗大小和方向的HTML5頁。 例如,下列檢視區寬度範圍對應於各種裝置類型和方向

  • 最大寬度為480像素(手機、縱向)
  • 最大寬度為767像素(手機、橫向)
  • 寬度介於768像素和979像素(平板電腦、縱向)之間
  • 寬度介於980像素和1199像素(平板電腦、橫向)之間
  • 寬度為1200px或更高(台式機)

如需實作回應式設計行為的相關資訊,請參閱下列主題:

在您設計時,請使用 Sidekick 來預覽不同螢幕大小的頁面。

開發之前 before-you-develop

在開發支援您網頁的AEM應用程式之前,應先做出幾項設計決策。 例如,您需要下列資訊:

  • 您正在定位的裝置。
  • 目標檢視區大小。
  • 每個目標檢視區大小的頁面配置。

應用程式結構 application-structure

典型的AEM應用程式結構支援所有回應式設計實施:

  • 頁面元件位於/apps/下​ application_name/components
  • 範本位於/apps/下方​ application_name/templates
  • 設計位於/etc/designs下方

使用媒體查詢 using-media-queries

媒體查詢可讓您選擇性使用CSS樣式來呈現頁面。 AEM開發工具和功能可讓您有效且有效地在應用程式中實施媒體查詢。

W3C群組提供 媒體查詢 說明此CSS3功能和語法的建議。

建立CSS檔案 creating-the-css-file

在您的CSS檔案中,根據您所定位裝置的屬性定義媒體查詢。 下列實施策略對於管理每個媒體查詢的樣式是有效的:

  • 使用ClientLibraryFolder定義呈現頁面時組合的CSS。
  • 在個別CSS檔案中定義每個媒體查詢及相關的樣式。 使用代表媒體查詢之裝置功能的檔案名稱會很實用。
  • 定義個別CSS檔案中所有裝置通用的樣式。
  • 在ClientLibraryFolder的css.txt檔案中,按照組合的CSS檔案中的需要對清單CSS檔案進行排序。

We.Retail媒體範例使用此策略來定義網站設計中的樣式。 We.Retail使用的CSS檔案位於 */apps/weretail/clientlibs/clientlib-site/less/grid.less.

下表列出css子資料夾中的檔案。

檔案名
說明
媒體查詢
style.css
常見樣式。
N/A
bootstrap.css
通用樣式,由TwitterBootstrap定義。
N/A
responsive-1200px.css
1200像素寬或寬的所有介質的樣式。
@media(最小寬度:1200px){
...
}
responsive-980px-1199px.css
介質的樣式,介於980像素和1199像素之間。
@media(最小寬度:980px)和(最大寬度:1199px){
...
}
responsive-768px-979px.css
介質的樣式,介於768像素和979像素之間。
@media(最小寬度:768px)和(最大寬度:979px){
...
}
responsive-767px-max.css
寬小於768像素的所有媒體的樣式。
@media(最大寬度:767px){
...
}
responsive-480px.css
寬小於481像素的所有媒體的樣式。
@media(最大寬度:480){
...
}

中的css.txt檔案 /etc/designs/weretail/clientlibs 資料夾會列出用戶端程式庫資料夾所包含的CSS檔案。 檔案的順序實現樣式優先。 隨著裝置大小減小,樣式會更具體。

#base=css

style.css
 bootstrap.css
responsive-1200px.css
 responsive-980px-1199px.css
 responsive-768px-979px.css
 responsive-767px-max.css
 responsive-480px.css

筆尖:描述性檔案名稱可讓您輕鬆識別目標檢視區大小。

搭配AEM頁面使用媒體查詢 using-media-queries-with-aem-pages

將客戶端庫資料夾包含在頁面元件的JSP指令碼中,以生成包含媒體查詢的CSS檔案,並引用該檔案。

<ui:includeClientLib categories="apps.weretail.all"/>
NOTE
apps.weretail.all 用戶端程式庫資料夾內嵌clientlibs程式庫。

JSP指令碼會生成以下引用樣式表的HTML代碼:

<link rel="stylesheet" href="/etc/designs/weretail/clientlibs-all.css" type="text/css">
<link href="/etc/designs/weretail.css" rel="stylesheet" type="text/css">

預覽特定裝置 previewing-for-specific-devices

以不同檢視區大小查看頁面的預覽,以測試回應式設計的行為。 在 預覽 模式, Sidekick 包括 裝置 用於選擇設備的下拉菜單。 選取裝置時,頁面會隨著檢視區大小而變更。

chlimage_1-5

若要在中啟用裝置預覽 Sidekick,您必須設定頁面和 MobileEmulatorProvider 服務。 另一個頁面設定會控制顯示在 裝置 清單。

添加設備清單 adding-the-devices-list

裝置 清單顯示於 Sidekick 當頁面包含轉譯JSP指令碼時 裝置 清單。 若要新增 裝置 清單 Sidekick,包括 /libs/wcm/mobile/components/simulator/simulator.jsp 指令碼 head 區段。

在JSP中包括以下代碼,該代碼定義 head 小節:

<cq:include script="/libs/wcm/mobile/components/simulator/simulator.jsp"/>

若要查看範例,請開啟 /apps/weretail/components/page/head.jsp 檔案CRXDE Lite。

註冊頁面元件以進行模擬 registering-page-components-for-simulation

若要啟用裝置模擬器以支援您的頁面,請使用MobileEmulatorProvider工廠服務註冊您的頁面元件,並定義 mobile.resourceTypes 屬性。

使用AEM時,有數種方法可管理這類服務的組態設定;請參閱 配置OSGi 以取得完整詳細資訊。

例如,若要建立 [sling:OsgiConfig](/docs/experience-manager-64/deploying/configuring/configuring-osgi.md#adding-a-new-configuration-to-the-repository) 節點:

  • 父資料夾: /apps/application_name/config

  • 名稱: com.day.cq.wcm.mobile.core.impl.MobileEmulatorProvider-*alias*

    此。 *alias* 尾碼為必要值,因為MobileEmulatorProvider服務是工廠服務。 使用此工廠唯一的任何別名。

  • jcr sling:OsgiConfig

新增下列節點屬性:

  • 名稱: mobile.resourceTypes

  • 類型: String[]

  • 值:呈現網頁之頁面元件的路徑。 例如,geometrixx-media應用程式使用下列值:

    code language-none
    geometrixx-media/components/page
     geometrixx-unlimited/components/pages/page
     geometrixx-unlimited/components/pages/coverpage
     geometrixx-unlimited/components/pages/issue
    

指定設備組 specifying-the-device-groups

要指定顯示在「設備」清單中的設備組,請添加 cq:deviceGroups 屬性 jcr:content 網站根頁面的節點。 屬性的值是指向設備組節點的路徑陣列。

設備組節點位於 /etc/mobile/groups 檔案夾。

例如,Geometrixx Media網站的根頁面為 /content/geometrixx-media. 此 /content/geometrixx-media/jcr:content node包含下列屬性:

  • 名稱: cq:deviceGroups
  • 類型: String[]
  • 值: /etc/mobile/groups/responsive

使用工具控制台 建立和編輯設備組.

NOTE
對於用於響應式設計的設備組,編輯設備組,並在「常規」頁簽上選擇「禁用模擬器」。 此選項可防止模擬器輪播出現,這與回應式設計無關。

使用最適化影像 using-adaptive-images

您可以使用媒體查詢來選取要顯示在頁面中的影像資源。 但是,每個使用媒體查詢來條件化其使用的資源都會下載到用戶端。 媒體查詢只會判斷是否顯示下載的資源。

對於影像等大型資源,下載所有資源並非有效使用用戶端的資料管道。 若要選擇性地下載資源,請在媒體查詢執行選取後,使用javascript起始資源要求。

以下策略載入使用媒體查詢選擇的單一資源:

  1. 為每個資源版本新增DIV元素。 將資源的URI作為屬性值。 瀏覽器不會將屬性解譯為資源。
  2. 將媒體查詢新增至適合資源的每個DIV元素。
  3. 當檔案載入或調整視窗大小時,javascript程式碼會測試每個DIV元素的媒體查詢。
  4. 根據查詢的結果,確定要包括的資源。
  5. 在參考資源的DOM中插入HTML元素。

使用Javascript評估媒體查詢 evaluating-media-queries-using-javascript

實作 MediaQueryList介面 W3C所定義的欄位,可讓您使用javascript評估媒體查詢。 您可以將邏輯套用至媒體查詢結果,並執行針對目前視窗的指令碼:

  • 實作MediaQueryList介面的瀏覽器支援 window.matchMedia() 函式。 此函式會針對指定字串測試媒體查詢。 函式會傳回 MediaQueryList 提供查詢結果存取權的物件。

  • 若為未實作介面的瀏覽器,您可以使用 matchMedia() 多填,例如 matchMedia.js,此元件為可免費使用的javascript資料庫。

選取媒體特定資源 selecting-media-specific-resources

W3C建議 圖片元素 使用媒體查詢來判斷要用於影像元素的來源。 圖片元素使用元素屬性來將媒體查詢與影像路徑關聯。

可自由使用 picturefill.js資料庫 提供與建議的類似功能 picture 元素,並使用類似的策略。 picturefill.js程式庫呼叫 window.matchMedia 評估為 div 元素。 每個 div 元素也指定影像源。 來源用於 div 元素傳回 true.

picturefill.js 程式庫需要類似下列範例的HTML程式碼:

<div data-picture>
    <div data-src='path to default image'></div>
    <div data-src='path to small image'    data-media="(media query for phone)"></div>
    <div data-src='path to medium image'   data-media="(media query for tablet)"></div>
    <div data-src='path to large image'     data-media="(media query for monitor)"></div>
</div>

轉譯頁面時,picturefull.js插入 img 元素,作為的最後一個子項 <div data-picture> 元素:

<div data-picture>
    <div data-src='path to default image'></div>
    <div data-src='path to small image'    data-media="(media query for phone)"></div>
    <div data-src='path to medium image'   data-media="(media query for tablet)"></div>
    <div data-src='path to large image'     data-media="(media query for monitor)"></div>
    <img src="path to medium image">
</div>

在AEM頁面中, data-src 屬性是存放庫中資源的路徑。

在AEM中實作最適化影像 implementing-adaptive-images-in-aem

若要在AEM應用程式中實作最適化影像,您需要新增必要的javascript程式庫,並在頁面中加入必要的HTML標籤。

資料庫

取得下列javascript程式庫,並將其納入用戶端程式庫資料夾中:

  • matchMedia.js (適用於不實作MediaQueryList介面的瀏覽器)
  • picturefill.js
  • jquery.js(透過 /etc/clientlibs/granite/jquery 用戶端程式庫資料夾(category = jquery)
  • jquery.debouncedresize.js (一個jquery事件,在調整窗口大小後發生一次)

提示: 您可以依照 內嵌.

HTML

建立元件,以產生picturefill.js程式碼預期的必要div元素。 在AEM頁面中, data-src屬性的值是存放庫中資源的路徑。 例如,頁面元件可以在DAM中為影像轉譯硬式編碼媒體查詢和相關路徑。 或者,建立自訂影像元件,讓作者選取影像轉譯或指定執行階段轉譯選項。

下列範例HTML會從相同影像的2個DAM轉譯中選取。

<div data-picture>
    <div data-src='/content/dam/geometrixx-media/articles/meridien.png'></div>
    <div data-src='/content/dam/geometrixx-media/articles/meridien.png/jcr:content/renditions/cq5dam.thumbnail.319.319.png'    data-media="(min-width: 769px)"></div>
    <div data-src='/content/dam/geometrixx-media/articles/meridien.png/jcr:content/renditions/cq5dam.thumbnail.140.100.png'   data-media="(min-width: 481px)"></div>
</div>
NOTE
自適應影像基礎元件會實施自適應影像:
  • 客戶端庫資料夾: /libs/foundation/components/adaptiveimage/clientlibs
  • 生成HTML的指令碼: /libs/foundation/components/adaptiveimage/adaptiveimage.jsp
後續章節提供此元件的詳細資訊。

了解AEM中的影像轉譯 understanding-image-rendering-in-aem

若要自訂影像轉譯,您應了解預設的AEM靜態影像轉譯實施。 AEM提供影像元件和影像轉譯servlet,可搭配使用來轉譯網頁的影像。 當頁面的段落系統中包含影像元件時,會發生下列事件順序:

  1. 編寫:作者可編輯影像元件,以指定要包含在HTML頁面中的影像檔案。 檔案路徑儲存為影像元件節點的屬性值。
  2. 頁面請求:頁面元件的JSP會產生HTML代碼。 Image元件的JSP將生成一個img元素並添加到頁面中。
  3. 影像要求:Web瀏覽器載入頁面,並根據img元素的src屬性要求影像。
  4. 影像呈現:影像呈現servlet會將影像傳回至Web瀏覽器。

chlimage_1-6

例如,影像元件的JSP將生成以下HTML元素:

<img title="My Image" alt="My Image" class="cq-dd-image" src="/content/mywebsite/en/_jcr_content/par/image_0.img.jpg/1358372073597.jpg">

瀏覽器載入頁面時,會使用src屬性的值作為URL來要求影像。 Sling會解壓縮URL:

  • 資源: /content/mywebsite/en/_jcr_content/par/image_0
  • 檔案名副檔名: .jpg
  • 選擇器: img
  • 字尾: 1358372073597.jpg

image_0 節點具有 jcr:resourceTypefoundation/components/image,其中 sling:resourceSuperTypefoundation/components/parbase. parbase元件包含img.GET.java指令碼,該指令碼與請求URL的選擇器和檔案名副檔名匹配。 CQ使用此指令碼(servlet)來轉譯影像。

若要查看指令碼的原始碼,請使用CRXDE Lite開啟 /libs/foundation/components/parbase/img.GET.java
檔案。

根據當前視區大小縮放影像 scaling-images-for-the-current-viewport-size

根據客戶端視區的特性在運行時縮放影像,以提供符合響應式設計原則的影像。 使用與靜態影像呈現相同的設計模式,使用servlet和製作元件。

元件需要執行下列工作:

  • 將影像資源的路徑和所需維度儲存為屬性值。
  • 產生 div 包含要轉譯影像之媒體選取器和服務呼叫的元素。
NOTE
Web用戶端使用matchMedia和Picturefill javascript程式庫(或類似的程式庫)來評估媒體選取器。

處理影像請求的Servlet需要執行下列任務:

  • 從元件屬性中檢索影像的路徑和尺寸。
  • 根據屬性縮放影像並傳回影像。

可用的解決方案

AEM會安裝下列您可使用或擴充的實作。

  • 可產生媒體查詢的適用性影像基礎元件,以及可縮放影像的適用性影像元件Servlet的HTTP要求。
  • Geometrixx公域套件會安裝影像參考修改Servlet範例servlet,以變更影像解析度。

了解自適應影像元件 understanding-the-adaptive-image-component

自適應影像元件產生對自適應影像元件Servlet的調用,以呈現根據設備螢幕大小的影像。 元件包含下列資源:

  • JSP:新增div元素,將媒體查詢與對適用性影像元件Servlet的呼叫建立關聯。
  • 客戶端庫:clientlibs資料夾是 cq:ClientLibraryFolder 會組合matchMedia polyfill javascript程式庫和修改的Picturefill javascript程式庫。
  • 編輯對話框:此 cq:editConfig 節點會覆寫CQ基礎影像元件,以便放置目標建立自適應影像元件而非基礎影像元件。

新增DIV元素 adding-the-div-elements

adaptive-image.jsp指令碼包含下列程式碼,用於產生div元素和媒體查詢:

<div data-picture data-alt='<%= alt %>'>
    <div data-src='<%= path + ".img.320.low." + extension + suffix %>'       data-media="(min-width: 1px)"></div>                                        <%-- Small mobile --%>
    <div data-src='<%= path + ".img.320.medium." + extension + suffix %>'    data-media="(min-width: 320px)"></div>  <%-- Portrait mobile --%>
    <div data-src='<%= path + ".img.480.medium." + extension + suffix %>'    data-media="(min-width: 321px)"></div>  <%-- Landscape mobile --%>
    <div data-src='<%= path + ".img.476.high." + extension + suffix %>'      data-media="(min-width: 481px)"></div>   <%-- Portrait iPad --%>
    <div data-src='<%= path + ".img.620.high." + extension + suffix %>'      data-media="(min-width: 769px)"></div>  <%-- Landscape iPad --%>
    <div data-src='<%= path + ".img.full.high." + extension + suffix %>'     data-media="(min-width: 1025px)"></div> <%-- Desktop --%>

    <%-- Fallback content for non-JS browsers. Same img src as the initial, unqualified source element. --%>
    <noscript>
        <img src='<%= path + ".img.320.low." + extension + suffix %>' alt='<%= alt %>'>
    </noscript>
</div>

path 變數包含目前資源的路徑(自適應影像元件節點)。 程式碼會產生一系列 div 元素,具有下列結構:

<div data-scr = "*path-to-parent-node*.adaptive-image.adapt.*width*.*quality*.jpg" data-media="*media query*"></div>

的值 data-scr 屬性是Sling解析至可轉譯影像的適用性影像元件Servlet的URL。 data-media屬性包含根據用戶端屬性評估的媒體查詢。

下列HTML程式碼是 div JSP生成的元素:

<div data-src='/content/geometrixx-media/en/events/the-lineup-you-ve-been-waiting-for/jcr:content/article-content-par/adaptive_image.adapt.320.low.jpg'></div>
    <div data-src='/content/geometrixx-media/en/events/the-lineup-you-ve-been-waiting-for/jcr:content/article-content-par/adaptive_image.adapt.320.medium.jpg'    data-media="(min-width: 320px)"></div>
    <div data-src='/content/geometrixx-media/en/events/the-lineup-you-ve-been-waiting-for/jcr:content/article-content-par/adaptive_image.adapt.480.medium.jpg'    data-media="(min-width: 321px)"></div>
    <div data-src='/content/geometrixx-media/en/events/the-lineup-you-ve-been-waiting-for/jcr:content/article-content-par/adaptive_image.adapt.476.high.jpg'     data-media="(min-width: 481px)"></div>
    <div data-src='/content/geometrixx-media/en/events/the-lineup-you-ve-been-waiting-for/jcr:content/article-content-par/adaptive_image.adapt.620.high.jpg'     data-media="(min-width: 769px)"></div>
    <div data-src='/content/geometrixx-media/en/events/the-lineup-you-ve-been-waiting-for/jcr:content/article-content-par/adaptive_image.adapt.full.high.jpg'     data-media="(min-width: 1025px)"></div>

更改影像大小選擇器 changing-the-image-size-selectors

如果您自訂適用性影像元件並變更寬度選取器,您也必須設定適用性影像元件Servlet以支援寬度。

了解最適化影像元件Servlet understanding-the-adaptive-image-component-servlet

自適應影像元件Servlet根據指定的寬度調整JPEG影像的大小,並設定JPEG品質。

自適應影像元件Servlet的介面 the-interface-of-the-adaptive-image-component-servlet

適用性影像元件Servlet系結至預設的Sling Servlet,並支援.jpg、.jpeg、.gif和.png副檔名。 Servlet選擇器為img。

CAUTION
AEM不支援動畫.gif檔案進行最適化轉譯。

因此,Sling會將下列格式的HTTP要求URL解析為此servlet:

*path-to-node*.img.*extension*

例如,Sling會轉送含有URL的HTTP要求 http://localhost:4502/content/geometrixx/adaptiveImage.img.jpg 至適用性影像元件Servlet。

另外兩個選取器會指定要求的影像寬度和JPEG品質。 下列範例要求寬度480像素且中等品質的影像:

http://localhost:4502/content/geometrixx/adaptiveImage.adapt.480.MEDIUM.jpg

支援的影像屬性

Servlet接受有限數量的影像寬度和質量。 預設支援以下寬度(以像素為單位):

  • 完整
  • 320
  • 480
  • 476
  • 620

完整值表示沒有縮放。

支援下列JPEG品質值:

數值分別為0.4、0.82和1.0。

更改預設支援寬度

使用Web控制台(http://localhost:4502/system/console/configMgr)或sling:OsgiConfig節點,以設定Adobe CQ適用性影像元件Servlet支援的寬度。

如需如何設定AEM服務的詳細資訊,請參閱 配置OSGi.

Web主控台
sling:OsgiConfig
服務或節點名稱
「設定」標籤上的服務名稱為Adobe CQ適用性影像元件Servlet
com.day.cq.wcm.foundation.impl. AdaptiveImageComponentServlet
屬性

支援的寬度

  • 若要新增支援的寬度,請按一下+按鈕並輸入正整數。
  • 若要移除支援的寬度,請按一下相關的 — 按鈕。
  • 要修改支援的寬度,請編輯欄位值。

adapt.supported.widths

  • 屬性是多值字串值。

實作詳細資料 implementation-details

com.day.cq.wcm.foundation.impl.AdaptiveImageComponentServlet 類擴展 AbstractImageServlet 類別。 AdaptiveImageComponentServlet原始碼位於 /libs/foundation/src/impl/src/com/day/cq/wcm/foundation/impl 檔案夾。

類使用Felix SCR注釋來配置servlet關聯的資源類型和副檔名以及第一個選擇器的名稱。

@Component(metatype = true, label = "Adobe CQ Adaptive Image Component Servlet",
        description = "Render adaptive images in a variety of qualities")
@Service
@Properties(value = {
    @Property(name = "sling.servlet.resourceTypes", value = "foundation/components/adaptiveimage", propertyPrivate = true),
    @Property(name = "sling.servlet.selectors", value = "img", propertyPrivate = true),
    @Property(name = "sling.servlet.extensions", value ={
            "jpg",
            "jpeg",
            "png",
            "gif"
    }, propertyPrivate = true)
})

Servlet使用屬性SCR注釋來設定預設支援的影像質量和尺寸。

@Property(value = {
            "320", // iPhone portrait
            "480", // iPhone landscape
            "476", // iPad portrait
            "620" // iPad landscape
    },
            label = "Supported Widths",
            description = "List of widths this component is permitted to generate.")

AbstractImageServlet 類別提供 doGet 處理HTTP要求的方法。 此方法會判斷與請求相關聯的資源,從存放庫中擷取資源屬性,並在 ImageContext 物件。

NOTE
com.day.cq.commons.DownloadResource 類別提供 getFileReference method,會擷取資源的值 fileReference 屬性。

AdaptiveImageComponentServlet 類覆蓋 createLayer 方法。 該方法從影像資源的路徑和請求的影像寬度 ImageContext 物件。 接著,會呼叫 info.geometrixx.commons.impl.AdaptiveImageHelper 類,執行實際影像縮放。

AdaptiveImageComponentServlet類還覆蓋writeLayer方法。 此方法會將JPEG品質套用至影像。

影像參考修改Servlet(Geometrixx公用) image-reference-modification-servlet-geometrixx-common

示例Image Reference Modification Servlet為img元素生成大小屬性,以在網頁上縮放影像。

呼叫Servlet calling-the-servlet

Servlet已綁定到 cq:page 資源,並支援.jpg檔案副檔名。 Servlet選擇器為 image. 因此,Sling會將下列格式的HTTP要求URL解析為此servlet:

path-to-page-node.image.jpg

例如,Sling會轉送含有URL的HTTP要求 http://localhost:4502/content/geometrixx/en.image.jpg 到影像引用修改Servlet。

另外三個選取器會指定要求的影像寬度、高度和(選擇性)品質。 下列範例要求寬度770像素、高度360像素和中等品質的影像。

http://localhost:4502/content/geometrixx/en.image.770.360.MEDIUM.jpg

支援的影像屬性

Servlet接受有限數量的影像尺寸和質量值。

預設支援下列值(widthheight):

  • 256x192
  • 370x150
  • 480x200
  • 127x127
  • 770x360
  • 620x290
  • 480x225
  • 320x150
  • 375x175
  • 303x142
  • 1170x400
  • 940x340
  • 770x300
  • 480x190

支援下列影像品質值:

使用AEM時,有數種方法可管理這類服務的組態設定;請參閱 配置OSGi 以取得完整詳細資訊。

指定影像資源 specifying-the-image-resource

影像路徑、維度和質量值必須儲存為儲存庫中節點的屬性:

  • 節點名稱為 image.

  • 父節點是 jcr:content 節點 cq:page 資源。

  • 影像路徑會儲存為 fileReference.

編寫頁面時,請使用 Sidekick 指定影像並新增 image 節點到頁面屬性:

  1. Sidekick,按一下 頁面 ,然後按一下 頁面屬性.
  2. 按一下 影像 頁簽,並指定影像。
  3. 按一下​ 「確定」

實作詳細資料 implementation-details-1

info.geometrixx.commons.impl.servlets.ImageReferenceModificationServlet類別延伸 AbstractImageServlet 類別。 若您已安裝cq-geometrixx-commons-pkg套件,則ImageReferenceModificationServlet原始碼位於 /apps/geometrixx-commons/src/core/src/main/java/info/geometrixx/commons/impl/servlets 檔案夾。

類使用Felix SCR注釋來配置servlet關聯的資源類型和副檔名以及第一個選擇器的名稱。

@Component(metatype = true, label = "Adobe CQ Image Reference Modification Servlet",
        description = "Render the image associated with a page in a variety of dimensions and qualities")
@Service
@Properties(value = {
    @Property(name = "sling.servlet.resourceTypes", value = NameConstants.NT_PAGE, propertyPrivate = true),
    @Property(name = "sling.servlet.selectors", value = "image", propertyPrivate = true),
    @Property(name = "sling.servlet.extensions", value = "jpg", propertyPrivate = true)
})

Servlet使用屬性SCR注釋來設定預設支援的影像質量和尺寸。

@Property(label = "Image Quality",
            description = "Quality must be a double between 0.0 and 1.0", value = "0.82")
@Property(value = {
                "256x192", // Category page article list images
                "370x150", // "Most popular" desktop & iPad & carousel min-width: 1px
                "480x200", // "Most popular" phone
                "127x127", // article summary phone square images
                "770x360", // article summary, desktop
                "620x290", // article summary, tablet
                "480x225", // article summary, phone (landscape)
                "320x150", // article summary, phone (portrait) and fallback
                "375x175", // 2-column article summary, desktop
                "303x142", // 2-column article summary, tablet
                "1170x400", // carousel, full
                "940x340",  // carousel min-width: 980px
                "770x300",  // carousel min-width: 768px
                "480x190"   // carousel min-width: 480px
            },
            label = "Supported Resolutions",
            description = "List of resolutions this component is permitted to generate.")

AbstractImageServlet 類別提供 doGet 處理HTTP要求的方法。 此方法會判斷與呼叫相關聯的資源、從存放庫中擷取資源屬性,並將其儲存在 ImageContext 物件。

ImageReferenceModificationServlet 類覆蓋 createLayer 方法及實現邏輯,該邏輯決定要呈現的影像資源。 方法會擷取頁面的子節點 jcr:content 節點已命名 image. 安 影像 物件是從此 image 節點,和 getFileReference 方法會從 fileReference 影像節點的屬性。

NOTE
com.day.cq.commons.DownloadResource 類提供getFileReference方法。

開發流體網格 developing-a-fluid-grid

AEM可讓您有效實作流體格線。 本頁面說明如何整合流體格線或現有格線實施(例如 Bootstrap)放入您的AEM應用程式中。

如果您不熟悉流體格線,請參閱 流體網格簡介 區段。 本文概述了流體網格的概述,並為流體網格的設計提供了指導。

使用頁面元件定義網格 defining-the-grid-using-a-page-component

使用頁面元件來產生定義頁面內容區塊的HTML元素。 頁面所參考的ClientLibraryFolder提供控制內容區塊配置的CSS:

  • 頁面元件:新增代表內容區塊列的div元素。 代表內容區塊的div元素包含「parsys」元件,供作者新增內容。
  • 客戶端庫資料夾:提供CSS檔案,其中包含div元素的媒體查詢和樣式。

例如,範例geometrixx-media應用程式包含media-home元件。 此頁面元件插入兩個指令碼,並產生兩個 div 類元素 row-fluid:

  • 第一列包含 div 類別元素 span12 (內容涵蓋12欄)。 此 div 元素包含parsys元件。

  • 第二列包含兩個 div 元素,類之一 span8 和其他同類 span4. 每個 div 元素包含parsys元件。

<div class="page-content">
    <div class="row-fluid">
        <div class="span12">
            <cq:include path="grid-12-par" resourceType="foundation/components/parsys" />
        </div>
    </div>
    <div class="row-fluid">
        <div class="span8">
            <cq:include path="grid-8-par" resourceType="foundation/components/parsys" />
        </div>
        <div class="span4">
            <cq:include path="grid-4-par" resourceType="foundation/components/parsys" />
        </div>
    </div>
</div>
NOTE
當元件包含多個 cq:include 參照parsys元件的元素,每個元素 path 屬性必須有不同的值。

縮放頁面元件格線 scaling-the-page-component-grid

與geometrixx-media頁面元件(/etc/designs/geometrixx-media)包含 clientlibs ClientLibraryFolder。 此ClientLibraryFolder定義 row-fluid 類別, span* 類別和 span* 屬於 row-fluid 類別。 媒體查詢可根據不同的檢視區大小重新定義樣式。

以下範例CSS是這些樣式的子集。 此子集著重於 span12, span8,和 span4 類別和媒體查詢。 請注意CSS的下列特性:

  • .span 樣式使用絕對數字定義元素寬度。
  • .row-fluid .span* 樣式將元素寬度定義為父項的百分比。 百分比是從絕對寬度計算。
  • 較大檢視區的媒體查詢會指派較大的絕對寬度。
NOTE
Geometrixx Media範例整合 Bootstrap javascript架構整合至其流暢的格線實施中。 Bootstrap框架提供bootstrap.css檔案。
/* default styles (no media queries) */
 .span12 { width: 940px }
 .span8 { width: 620px }
 .span4 { width: 300px }
 .row-fluid .span12 { width: 100% }
 .row-fluid .span8 { width: 65.95744680851064% }
 .row-fluid .span4 { width: 31.914893617021278% }

@media (min-width: 768px) and (max-width: 979px) {
 .span12 { width: 724px; }
 .span8 {     width: 476px; }
 .span4 {     width: 228px; }
 .row-fluid .span12 {     width: 100%;}
 .row-fluid .span8 {     width: 65.74585635359117%; }
 .row-fluid .span4 {     width: 31.491712707182323%; }
}

@media (min-width: 1200px) {
 .span12 { width: 1170px }
 .span8 { width: 770px }
 .span4 { width: 370px }
 .row-fluid .span12 { width: 100% }
 .row-fluid .span8 { width: 65.81196581196582% }
 .row-fluid .span4 { width: 31.623931623931625% }
}

重新定位頁面元件格線中的內容 repositioning-content-in-the-page-component-grid

範例Geometrixx Media應用程式的頁面在寬檢視區中水準分佈內容區塊列。 在較小的檢視區中,相同的區塊會垂直分佈。 下列範例CSS顯示為媒體首頁元件產生的HTML程式碼實作此行為的樣式:

  • media-welcome頁面的預設CSS會指派 float:left 樣式 span* 內的類 row-fluid 類別。

  • 較小檢視區的媒體查詢會指派 float:none 樣式。

/* default styles (no media queries) */
    .row-fluid [class*="span"] {
        width: 100%;
        float: left;
}

@media (max-width: 767px) {
    [class*="span"], .row-fluid [class*="span"] {
        float: none;
        width: 100%;
    }
}

將頁面元件模組化 tip-modularize-your-page-components

將元件模組化,以有效使用程式碼。 您的網站可能會使用數種不同類型的頁面,例如歡迎頁面、文章頁面或產品頁面。 每種類型的頁面包含不同的內容類型,且可能使用不同的版面。 不過,當每個版面的某些元素在多個頁面間共用時,您可以重複使用實作該部分版面的程式碼。

使用頁面元件覆蓋

建立主要頁面元件,提供用於產生頁面各個部分的指令碼,例如 headbody 區段和 header, content,和 footer 內的部分。

建立使用首頁面元件作為 cq:resourceSuperType. 這些元件包含可視需要覆寫主要頁面指令碼的指令碼。

例如,gemetrixx-media應用程式包含頁面元件( sling:resourceSuperType 是基礎頁面元件)。 有數個子元件(例如文章、類別和媒體首頁)使用此頁面元件作為 sling:resourceSuperType. 每個子元件都包含一個content.jsp檔案,該檔案將覆蓋頁元件的content.jsp檔案。

重複使用指令碼

建立多個JSP指令碼,這些指令碼生成多個頁面元件通用的行和列組合。 例如, content.jsp 文章的指令碼和media-home元件都會參考 8x4col.jsp 指令碼。

依目標檢視區大小組織CSS樣式

在個別檔案中包含不同檢視區大小的CSS樣式和媒體查詢。 使用用戶端程式庫資料夾來串連。

在頁面格線中插入元件 inserting-components-into-the-page-grid

元件產生單一內容區塊時,通常頁面元件所建立的格線會控制內容的放置位置。

作者應注意,內容區塊可以以各種大小和相對位置呈現。 內容文字不應使用相對方向來參照其他內容區塊。

如有需要,元件應提供其產生之HTML程式碼所需的任何CSS或Javascript程式庫。 在元件內使用用戶端程式庫資料夾來產生CSS和JS檔案。 為了公開檔案, 建立相依性或內嵌程式庫 位於/etc資料夾下方的另一個客戶端庫資料夾中。

子網格

如果元件包含多個內容區塊,請在列內新增內容區塊,以在頁面上建立子格線:

  • 使用與容納頁面元件相同的類別名稱,將div元素表示為行和內容區塊。
  • 若要覆寫頁面設計的CSS實作的行為,請為列div元素使用第二個類別名稱,並在用戶端程式庫資料夾中提供相關聯的CSS。

例如, /apps/geometrixx-media/components/2-col-article-summary 元件會產生兩欄內容。 其產生的HTML具有下列結構:

<div class="row-fluid mutli-col-article-summary">
    <div class="span6">
        <article>
            <div class="article-summary-image">...</div>
            <div class="social-header">...</div>
            <div class="article-summary-description">...</div>
            <div class="social">...</div>
        </article>
    </div>
</div>

.row-fluid .span6 頁面CSS的選取器會套用至 div 此HTML中相同類和結構的元素。 不過,元件也包含/apps/geometrixx-media/components/2-col-article-summary/clientlibs用戶端程式庫資料夾:

  • CSS使用與頁面元件相同的媒體查詢,以建立相同離散頁面寬度的版面配置變更。
  • 選取器使用 multi-col-article-summary 行的類 div 元素來覆寫頁面的行為 row-fluid 類別。

例如, /apps/geometrixx-media/components/2-col-article-summary/clientlibs/css/responsive-480px.css 檔案:

@media (max-width: 480px) {
    .mutli-col-article-summary .article-summary-image {
        float: left;
        width: 127px;
    }
    .mutli-col-article-summary .article-summary-description {
        width: auto;
        margin-left: 127px;
    }
    .mutli-col-article-summary .article-summary-description h4 {
        padding-left: 10px;
    }
    .mutli-col-article-summary .article-summary-text {
        margin-left: 127px;
        min-height: 122px;
        top: 0;
    }
}

流體網格簡介 introduction-to-fluid-grids

流暢的格線可讓頁面配置與用戶端檢視區的尺寸相適應。 網格由邏輯欄和列組成,這些列會在頁面上放置內容區塊。

  • 欄決定內容區塊的水準位置和寬度。
  • 列決定內容區塊的相對垂直位置。

使用HTML5技術,您可以實作格線並操控它,以調整頁面配置以適應不同的檢視區大小:

  • HTML div 元素包含跨越特定數列的內容區塊。
  • 當這些div元素中的一個或多個共用父元素時,它們構成一行。

使用離散寬度 using-discrete-widths

對於您要定位的每個檢視區寬度範圍,請使用靜態頁面寬度和內容區塊(以恆定寬度表示)。 手動調整瀏覽器視窗大小時,內容大小的變更會發生在離散的視窗寬度(也稱為中斷點)。 因此,頁面設計得更緊密地黏附,以最大化使用者體驗。

縮放網格 scaling-the-grid

使用格線來縮放內容區塊,以適應不同的檢視區大小。 內容區塊會跨越特定數量的欄。 隨著欄寬的增加或減小以適合不同的視區尺寸,內容塊的寬度相應地增加或減小。 縮放可支援大型和中型檢視區,其寬度足以容納並排放置內容區塊。

重新定位網格中的內容 repositioning-content-in-the-grid

內容區塊的大小可以受到最小寬度的限制,超過此寬度便不再有效縮放。 對於較小的檢視區,格線可用來垂直分佈內容區塊,而非水準分佈。

設計網格 designing-the-grid

決定在頁面上放置內容區塊所需的欄和列。 您的頁面配置決定跨網格的欄和列數。

欄數

包括足夠的列,以水準放置所有佈局中的內容塊(所有視區大小)。 若要容納未來的頁面設計,您應使用的欄數應多於目前所需的欄數。

列內容

使用列來控制內容區塊的垂直定位。 決定共用相同列的內容區塊:

  • 任何版面中水準排列彼此相鄰的內容區塊都位於同一列。
  • 水準(較寬的檢視區)和垂直(較小的檢視區)相鄰的內容區塊位於同一列。

網格實現 grid-implementations

建立CSS類別和樣式以控制頁面上內容區塊的版面。 頁面設計通常以檢視區內內容區塊的相對大小和位置為基礎。 檢視區會決定內容區塊的實際大小。 您的CSS必須考慮相對大小和絕對大小。 您可以使用三種CSS類別來實作流動格線:

  • 的類別 div 元素,此元素是所有列的容器。 此類設定網格的絕對寬度。
  • 的類別 div 代表列的元素。 此類控制其包含的內容塊的水準或垂直位置。
  • 的類 div 代表不同寬度內容區塊的元素。 寬度以父項(列)的百分比表示。

目標檢視區寬度(及其相關的媒體查詢)會標定用於頁面配置的離散寬度。

內容區塊寬度 widths-of-content-blocks

一般而言, width 內容塊類的樣式基於頁面和網格的以下特性:

  • 用於每個目標檢視區大小的絕對頁面寬度。 這些是已知值。
  • 每個頁面寬度的網格列的絕對寬度。 這些值由您決定。
  • 每欄的相對寬度佔總頁面寬度的百分比。 您可以計算這些值。

CSS包含一系列使用下列結構的媒體查詢:

@media(query_for_targeted_viewport){

  .class_for_container{ width:absolute_page_width }
  .class_for_row { width:100%}

  /* several selectors for content blocks   */
  .class_for_content_block1 { width:absolute_block_width1 }
  .class_for_content_block2 { width:absolute_block_width2 }
  ...

  /* several selectors for content blocks inside rows */
  .class_for_row .class_for_content_block1 { width:relative_block_width1 }
  .class_for_row .class_for_content_block2 { width:relative_block_width2 }
  ...
}

使用下列演算法作為開發頁面的元素類別和CSS樣式的起點。

  1. 為包含所有列的div元素定義類別名稱,例如 content.

  2. 為代表列的div元素定義CSS類別,例如 row-fluid.

  3. 定義內容區塊元素的類別名稱。 所有可能的寬度(以列範圍計)都需要一個類。 例如,使用 span3 類別 div 跨3欄的元素,請使用 span4 4欄範圍的類別。 定義網格中列數。

  4. 針對您要定位的每個檢視區大小,將對應的媒體查詢新增至您的CSS檔案。 在每個媒體查詢中新增下列項目:

    • 的選取器 content 類,例如 .content{}.
    • 例如,每個跨類的選取器 .span3{ }.
    • 的選取器 row-fluid 類,例如 .row-fluid{ }
    • 例如,行 — 流體類內跨類的選擇器 .row-fluid span3 { }.
  5. 為每個選取器新增寬度樣式:

    1. 設定 content 選取器來調整頁面的絕對大小,例如 width:480px.
    2. 將所有列流體選取器的寬度設為100%。
    3. 將所有跨度選取器的寬度設定為內容區塊的絕對寬度。 瑣碎的網格使用相同寬度的均勻分佈列: (absolute width of page)/(number of columns).
    4. 設定 .row-fluid .span 選取器(佔總寬度的百分比)。 使用 (absolute span width)/(absolute page width)*100 公式。

在行中定位內容塊 positioning-content-blocks-in-rows

使用 .row-fluid 類,控制行中的內容塊是水準排列還是垂直排列。

  • float:leftfloat:right 樣式會造成子元素(內容區塊)的水準分佈。

  • float:none 樣式會造成子元素的垂直分佈。

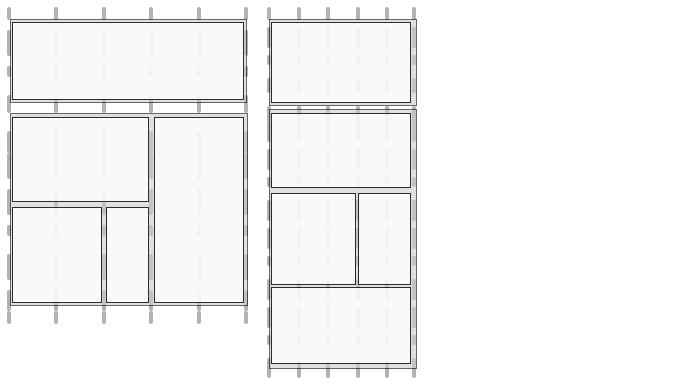
將樣式新增至 .row-fluid 每個媒體查詢內的選取器。 根據您要用於該媒體查詢的頁面配置設定值。 例如,下圖說明的列會水準分配內容供寬檢視區使用,而垂直分配供窄檢視區使用。

下列CSS可實作此行為:

@media (min-width: 768px) and (max-width: 979px) {
   .row-fluid {
       width:100%;
       float:left
   }
}

@media (max-width:480px){
    .row-fluid {
       width:100%;
       float:none
   }
}

為內容塊指派類 assigning-classes-to-content-blocks

針對您要定位的每個檢視區大小的頁面版面,決定每個內容區塊涵蓋的欄數。 然後,決定要用於這些內容區塊的div元素的類別。

建立div類後,可以使用AEM應用程式實施網格。

recommendation-more-help
2315f3f5-cb4a-4530-9999-30c8319c520e